生态走廊区 - Lambersart
走廊城市
该场地的两个核心元素指导了设计:该场地的自然遗产及其与 Pont Supérieur 地铁站的距离。
生态走廊、树木遗产和绿色建筑:
领土背景:PLU2 的动态映射表明,需要加强或开发的走廊沿着场地的西部边界,即沿着铁路线。研究区域南部延伸至绿色路径以北的绿化带被注册为“保护和保存景观与环境元素的工具”,以及位于布莱叶街和 1945 年 5 月 8 日街之间的铁路线以西以及弗兰德斯街项目周边以东的树木繁茂的郊区花园区域。生态走廊通过铁路网沿线的林地将奥尔姆的风景公墓和里尔都市区西部与塞克丹连接起来。
Pont Supérieur 地铁站:由于 Pont Supérieur 地铁站位于项目南侧,因此我们建议创建一个南北向的线性步行公园,以提高景观质量并鼓励人们穿过场地前往车站。
该项目旨在增加从 Avenue de l'Hippodrome 到 Avenue de Dunkerque 的所有 Lambersart 居民的地铁使用率。白天,行动不便的人士甚至可以选择在树梢上进行树冠空中漫步。远眺里尔钟楼将强化该项目的大都市特色,该项目由景观设计师团队设计,是弹性城市的实验模型。
景观概念和城市战略:
该项目保留了场地上的所有树木。将所有小主体移植到绿色建筑上,强化项目的生态廊道作用。
该项目旨在为当地居民带来更好的生活质量。
拟议的重新规划允许创建一个大型南北线性公园,并且现有住宅附近没有建筑物。这种类型使得能够提供向南开放、通向景观公园的高品质景观建筑。
我们建议建造阶梯式景观建筑和景观坡道,背靠生态走廊,为当地居民和新公共公园提供隔音屏障。绿色建筑延续了堤岸的林带,可以创建所有人都可以进入的共享露台,周围环绕着植被。
天篷公园的入口处有一座漂亮的砖砌建筑,它是工业遗产,我们决定对其进行修复,以容纳当地的商店和一家专门用于接待儿童并向公园开放的餐厅。这种“已然存在”的城市战略使得该项目能够以经济手段的逻辑纳入到该地方历史的延续之中。
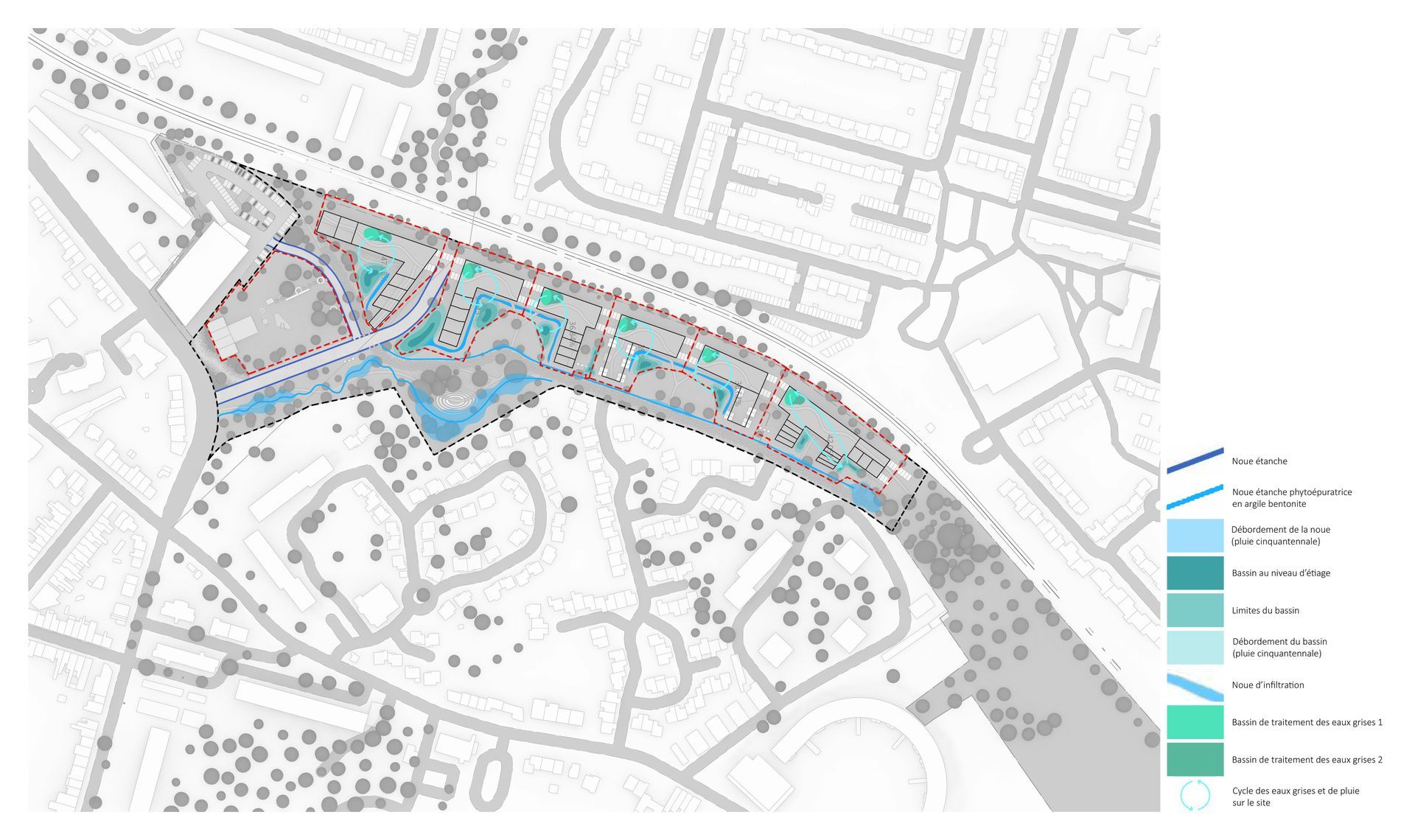
项目设计以铁路路堤上的林木为背景,构建多框架线性生物走廊,西侧为空地造林,以加强现有造林。植物种类为本土植物,包括欧洲槭、岩栎、单子山楂、刺李等,框架内的湿地,植被建筑斜坡上的干旱草地。融入走廊生物群落的建筑采用了社区的砖块材料。
因此,该项目的既定目标是加强城市自然环境,保证城市密度符合 SCOT 的可接受性:
- 改善生活环境,为居民创造便利条件;
- 维护和重新征服生物多样性;
- 雨水管理;
- 城市微气候管理(特别是热岛现象);
——改善空气质量。
交通顺畅
该项目旨在为相邻的 Evrard de Frioul 街、Chemin Vert 街、Ferme Lelong 巷直至 Hippodrome 大道等住宅区创建平缓的交通路线,以鼓励人们乘坐地铁前往 Pont Supérieur 站。
为了改善并缩短路线,优先考虑行人、自行车和软交通方式,通过一条 6 米宽的共用车道,车辆可以在建筑物下方进入住宅。机动车交通将仅限于 Bonte 街东西入口序列,该序列将被定义为 20 公里区域内的共享空间。道路表面将与人行道区域处于同一高度,并覆盖有轻质矿物表面。
消防部门路线与位于风景优美的公园内的自愿捐款终端服务共享。为了保护该遗址的所有树木遗产,将详细研究道路的路线和海拔。
LIDL:为了限制场地上的交通并将其专门用作儿童公园,我们建议对 LIDL 停车场进行稍微重新设计,以便直接从 Rue Bonte 提供服务。这个可选位置对于向公园开放的购物中心来说仍然非常具有质量性。
可以研究在住宅南面的停车场上建造一座人行天桥。该地块将在夜间关闭,并须与市政府达成协议。
城市树冠漫步:
基本计划是在所有新建筑的绿色屋顶上创建无障碍露台。这些共享空间有助于增强建筑内的社会凝聚力。作为一种选择,我们建议在建筑物之间建造小型走道,以便在天篷中创建一条方便行动不便人士通行的空中走道。远处的里尔钟楼景观将增强该项目的大都市特色,而相邻的森林地区的景观则将有助于提高生活质量。





















