Ecological corridor district - Lambersart
Corridor City
Two central elements of the site guided the design: the natural heritage of the site and its proximity to the Pont Supérieur metro station.
The ecological corridor, tree heritage and green architecture:
Territorial context: The dynamic mapping of the PLU2 indicates that a corridor to be strengthened or developed is materialized along the western boundary of the site, i.e. along the railway line. The afforestation present in the southern continuity of the study area to the north of the green path is listed as "tools for the protection and preservation of landscape and environmental elements" as well as the areas of wooded suburban gardens to the west of the railway line between rue Braille and rue du 8 mai 1945 and to the east of the project perimeter rue des Flandres. The ecological corridor links the landscaped cemetery of Ormes and the west of the Lille metropolitan area towards Sequedin via the afforestation accompanying the railway networks.
Pont Supérieur metro station: The presence of the Pont Supérieur metro station to the south of the project led us to propose the creation of a north-south linear pedestrian park in order to promote the landscape qualities and encourage people to cross the site towards the station.
The project aims to expand metro use for all Lambersart residents, from Avenue de l'Hippodrome to Avenue de Dunkerque. During the day, it will even be possible to take an optional aerial walk through the treetops, accessible to people with reduced mobility. Distant views of the Belfry of Lille will reinforce the metropolitan character of the project, designed by a team of landscapers as an experimental model of the resilient city.
LANDSCAPE CONCEPT AND URBAN STRATEGY:
All of the site's trees are preserved by the project. All small trees are transplanted into the green architecture to enhance the project's role as an ecological corridor.
The project is designed to bring a better quality of life to local residents.
The proposed layout allows for the creation of a large north-south linear park and there are no buildings adjacent to existing homes. This typology allows for the provision of high-quality landscaped buildings opening onto a landscaped park to the south.
We propose the creation of landscaped buildings in steps and landscaped ramps backing onto the ecological corridor, which will provide a noise barrier for local residents and the new public park. The green architecture, continuing the wooded strip of the embankment, will create shared terraces accessible to all, surrounded by vegetation.
The entrance to the Canopy Park is marked by the attractive brick building from the industrial heritage that we decided to restore to house local shops and a restaurant dedicated to welcoming children and opening onto the park. This urban strategy of "already there" allows the project to be part of the continuity of the site's history while maintaining a cost-effective approach.
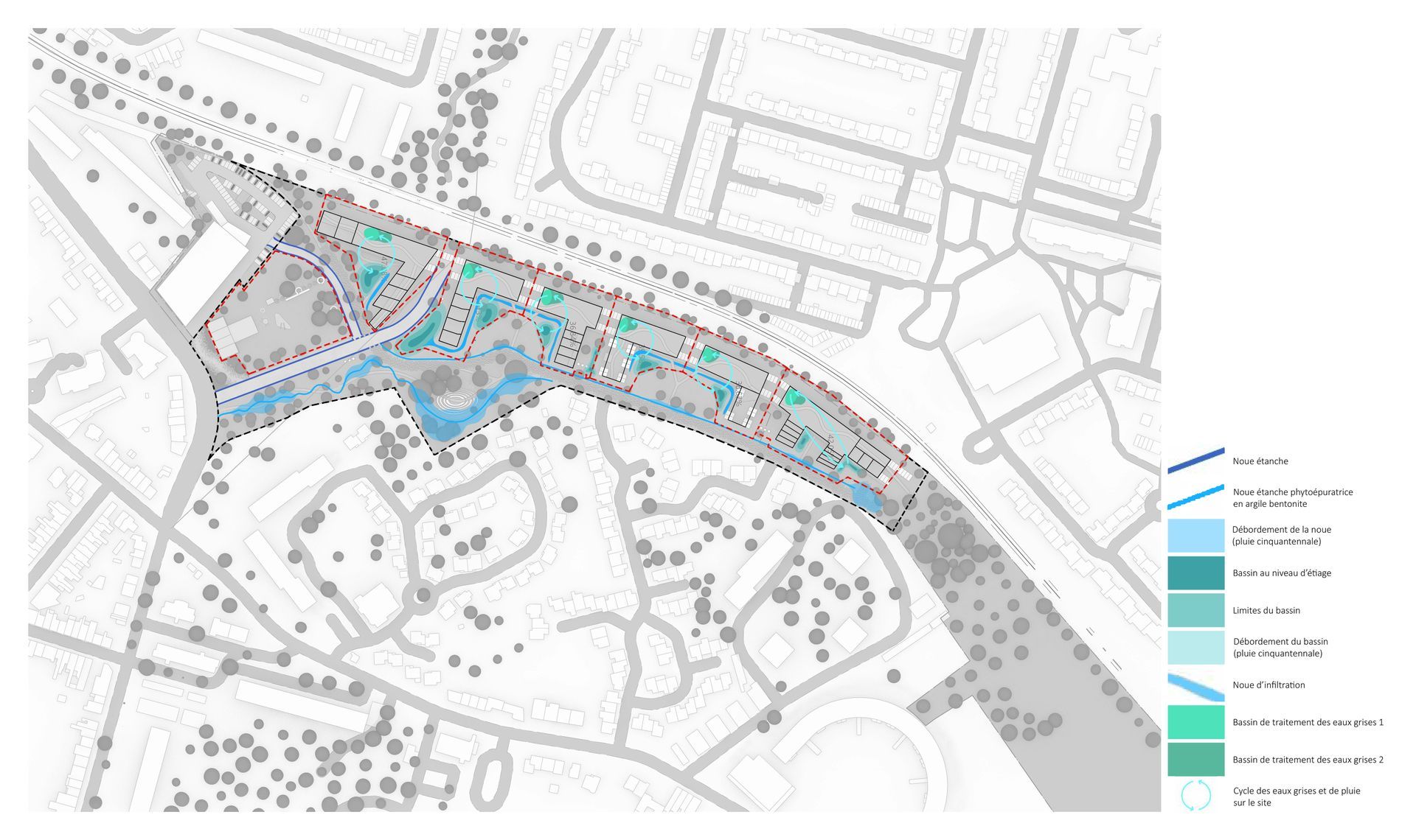
The project is designed to constitute a multi-frame linear biological corridor backed by the wooded cordons on the embankments of the railway line, it is made up of afforestation in open ground to the west in reinforcement of the existing woodlands. The plant palette is native made up of Acer pseudoplatanus, Quercus petraea, Crataegus monogyna, Prunus spinosa…, wetlands included in a frame, dry xerophilous meadows on the slopes of the vegetated architectures. The Architecture integrated into the biotope of the corridor takes up the materialities of the neighborhood constituted by the brick.
Thus the stated objectives of the project are the strengthening of nature in the city, guaranteeing the acceptability of urban density in accordance with the SCOT:
- Improving the living environment and creating amenities for residents;
- The maintenance and reconquest of biodiversity;
- Rainwater management;
- Management of urban microclimates (notably heat island phenomena);
- Improving air quality.
SMOOTH TRAFFIC
The project is designed to create gentle circulation routes to the adjacent residential districts of rue Evrard de Frioul, rue du Chemin Vert, allée de la Ferme Lelong up to avenue de l'Hippodrome to encourage the use of the metro to the Pont Supérieur station.
In order to qualify and shorten the routes, to give precedence to pedestrians, cyclists and soft modes, the vehicle access to the housing is done under the buildings thanks to a shared road 6 meters wide. Motorized traffic will be limited to the entry sequence rue Bonte East-West which will be defined as a shared space zone 20 km. The roadway will be at the same altitude as the pedestrian zones qualified by a light mineral coating.
The fire department's road is shared with the voluntary waste disposal points located in the landscaped park. In order to preserve the site's entire tree heritage, the route's layout and elevation will be carefully studied.
LIDL: In order to limit traffic on the site and dedicate it to a children's park, we propose slightly redesigning the LIDL parking lot so that it is served directly from Rue Bonte. This optional layout remains very qualitative for the shopping center opening onto the park.
A pedestrian bridge over the parking garages to the south could be considered with the development. This plot would be closed at night and would be subject to an agreement with the city.
The Urban Canopy Walk:
The initial plan is to create accessible terraces on all the green roofs of the new buildings. These shared spaces will strengthen social cohesion within the buildings. As an option, we propose creating small walkways between the buildings to create an aerial walkway in the canopy, accessible to people with reduced mobility. Distant views of the Belfry of Lille will reinforce the metropolitan character of the project, and the views of the adjacent wooded areas would be an asset for quality of life.





















